
Progetto muro in C.A.
Alluvione a Livorno del 10 settembre 2017
La notte tra il 9 e il 10 settembre 2017, su tutta la costa toscana, un temporale lunghissimo, con il vento forte che ha soffiato a raffiche, ha creato danni gravi tra Pisa e Livorno.
La situazione peggiore ? stata registrata a Livorno dove sono scesi 230mm di pioggia in 3 ore, pi? della quantit? registrata nei precedenti otto mesi dell’anno. Il bilancio ? stato di nove morti, problemi di viabilit? lungo le strade in tutta la regione e decine e decine di milioni di euro di danni dovuti a frane e smottamenti nelle zone collinari, esondazioni dei torrenti e allagamenti.
Interrogativi sono al vaglio della magistratura che ha aperto un’inchiesta, ancora contro ignoti, per disastro colposo e omicidio colposo.
L’alluvione ha provocato l’esondazione di due fiumi: il Rio Maggiore e il Rio Ardenza. Fra i danni che si sono verificati la demolizione di una serie di gabbionate in riva destra del Rio Ardenza quasi in prossimit? della foce, con conseguente allagamento di un resede condominiale confinante e del piano terra del fabbricato che si erge su tale area, provocando anche crolli di alcuni solai del piano dei garage.
La Regione Toscana, con interventi di somma urgenza, ha optato per il ripristino delle gabbionate divelte dall’alluvione e ha chiesto al Consorzio di Bonifica Toscana 5 che venisse realizzato a valle delle gabbionate un muro a retta in cemento armato a ulteriore protezione del resede del condominio confinante. La realizzazione di parte del secondo strato e del terzo strato delle gabbionate sono stati eseguiti una volta realizzato il muro.
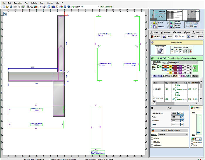
Il muro si sviluppa su una lunghezza di circa 65 m ed ? costituito da un fusto dello spessore di cm 30 e un’altezza dallo spiccato della fondazione (il cui estradosso si trova a 40 cm circa di profondit? rispetto al resede del condominio interessato) di cm 240. La suola di fondazione ha spessore di cm 40 e larghezza pari a cm 240, tutta spostata lato valle per l’impossibilit? di realizzare la suola lato monte a causa della presenza dei gabbioni. Inoltre ? presente un “taglione” o dente in corrispondenza del fusto, avente dimensioni pari a 50 cm e profondit? di 150 cm avente la funzione di fornire resistenza per lo scorrimento al muro, ma anche la funzione di impedire l’eventuale filtrazione sotto il livello della fondazione. Lo studio della filtrazione e, di conseguenza, la quota per la profondit? del “taglione” ? stata fornita dal Genio Civile di Livorno.
Scopo del progetto ? quello di avere un’ulteriore protezione a monte della gabbionata in massi ripristinata, anche per impedire in caso di piena del rio e di erosione dei gabbioni, infiltrazioni di acqua verso il cortile condominiale.
Ai fini del calcolo del muro ? stata fatta l’ipotesi della non presenza dei gabbioni resistenti all’eventuale spinta dell’acqua in caso di piena del Rio, affidandola quindi al muro incrementata del 40% per tenere conto dell’eventuale effetto dinamico e considerata agente per l’intera altezza del muro, ossia dallo spiccato della fondazione. Il peso dei gabbioni presenti sul lato di monte del muro ? stato simulato con un carico uniformemente distribuito al livello dell’estradosso della fondazione. Ai fini del calcolo dell’azione sismica l’azione dell’acqua ? stata valutata come carico permanente strutturale.
Per la determinazione della spinta il fusto del muro ? stato suddiviso in conci di profondit? di 100 cm e di altezza cm 20, sui quali ? stato applicato un carico linearmente variabile dalla sommit? del muro allo stacco della fondazione. Su ogni concio ? stato quindi applicato un vettore pari alla risultante delle pressioni ivi agenti ed applicato nel baricentro del diagramma lineare delle pressioni.
Trattandosi di un intervento di modesta rilevanza e ricadendo lo stesso in zona ben conosciuta dal punto di vista geotecnico, la progettazione si ? basata sull’esperienza e sulle conoscenze disponibili, nonché sulle quattro prove penetrometriche dinamiche effettuate. Gli strati definiti sono tre: un primo su cui appoggia la platea di fondazione costituito da sabbie limose e limi sabbiosi, un secondo formato da limi sabbiosi e un terzo di limi sabbiosi argillosi.
Date le caratteristiche litostratigrafiche dei terreni sottostanti il piano d’appoggio della fondazione, a matrice limosa/argillosa di buona consistenza, si possono escludere fenomeni di liquefazione ai sensi di quanto previsto dalle NTC 2008.
Il muro ? stato calcolato e verificato con il software DOLMEN, utilizzando l’apposito modulo IS MURI, da parte dell’ing. Claudio Pedalino e dell’ing. Claudio Neri di Livorno. La Normativa applicata ? stata il D.M. 14 gennaio 2008, l’Approccio scelto il 2.














